神木汽车站附近100元快餐,深圳品茶工作室联系方式,全国可飞同城空降,上海水疗工作室附近卖身女士电话号码高密免费的

多介质过滤器
衬胶罐
碳钢罐

当前位置: 首页/产品中心/阴阳离子交换器

';

产品中心

Product Center -


阴阳离子交换器

2024-07-09 11:28:33

产品详情

简介:

阳、阴离子交换器用于降低和去除水中的阳、阴离子的设备。

工作原理:

阳离子交换器采用HCL再生,阴离子交换器采用NaOH再生,阳树脂中的H离子与水中的阳离子进行交换反应去除水中的阳离子,阴树脂中OH离子与水中的阴离子进行交换反应去除绝大部分水中的阳阴离子。阴树脂去除阴离子,流速20-30。

1644309997253119.jpg


应用:

主要用于锅炉、化工、轻工、纺织、医药、生物、电子等用水的除盐纯化制备,阳阴交换器出水即一级除盐出水。

设备结构型式分为固定床、浮动床,一般使用固定床为多

1:根据再生方式可分为:顺流再生、逆流再生、无顶压逆流再生

2:根据出水装置结构可分为:水帽结构、石英砂垫层结构

3:根据用途可分为:单层、双层、双室双层等

1644310034365350.png

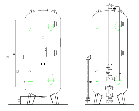
阴阳离子交换器

技术参数:

工作压力:≤0.59MPa

工作温度:5℃~50℃

运行流速:20m/h~25m/h

流量:20T/H~200T/H

规格:Φ1000~Φ3200

进水品质:悬浮物≤5mg/L

出水品质:阳床出水总硬度为0,钠泄漏量不大于100微克/升,一般在20~30微克/升。

阴床出水电导率<10μS/cm。

阴阳离子交换器尺寸规格表:

3.png4.png5.png6.png